- Location: Other Waterfront Island Area
- Island Area: Sanibel East End
- Rental Minimum: 30 days
- Pets: Owner with Restrictions
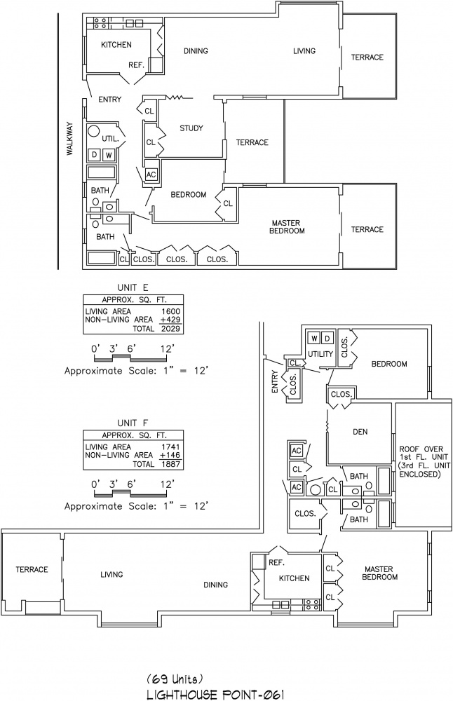
- # of Units: 69
- Year Built: 1976
- Description: Configs: 2/2 + Den
- Amenities: Swimming Pool, Tennis Courts, , Clubhouse, Elevator
- Address: 200 Periwinkle Way
- Features: Pool, Tennis Courts, Elevator,
- Largest Floorplan: Heated SqFt: 1565 - 1741SQFT Total SqFt:1991 - 2132SQFT
			Description
			
		
		
							This beautifully designed bay front complex appeal to owners looking for more privacy.
 
                    






